Polar-Inarijärvi Villa - Large Windows and Sunny Terrace Provide Light and Space
Modern holiday home with all the necessary amenities
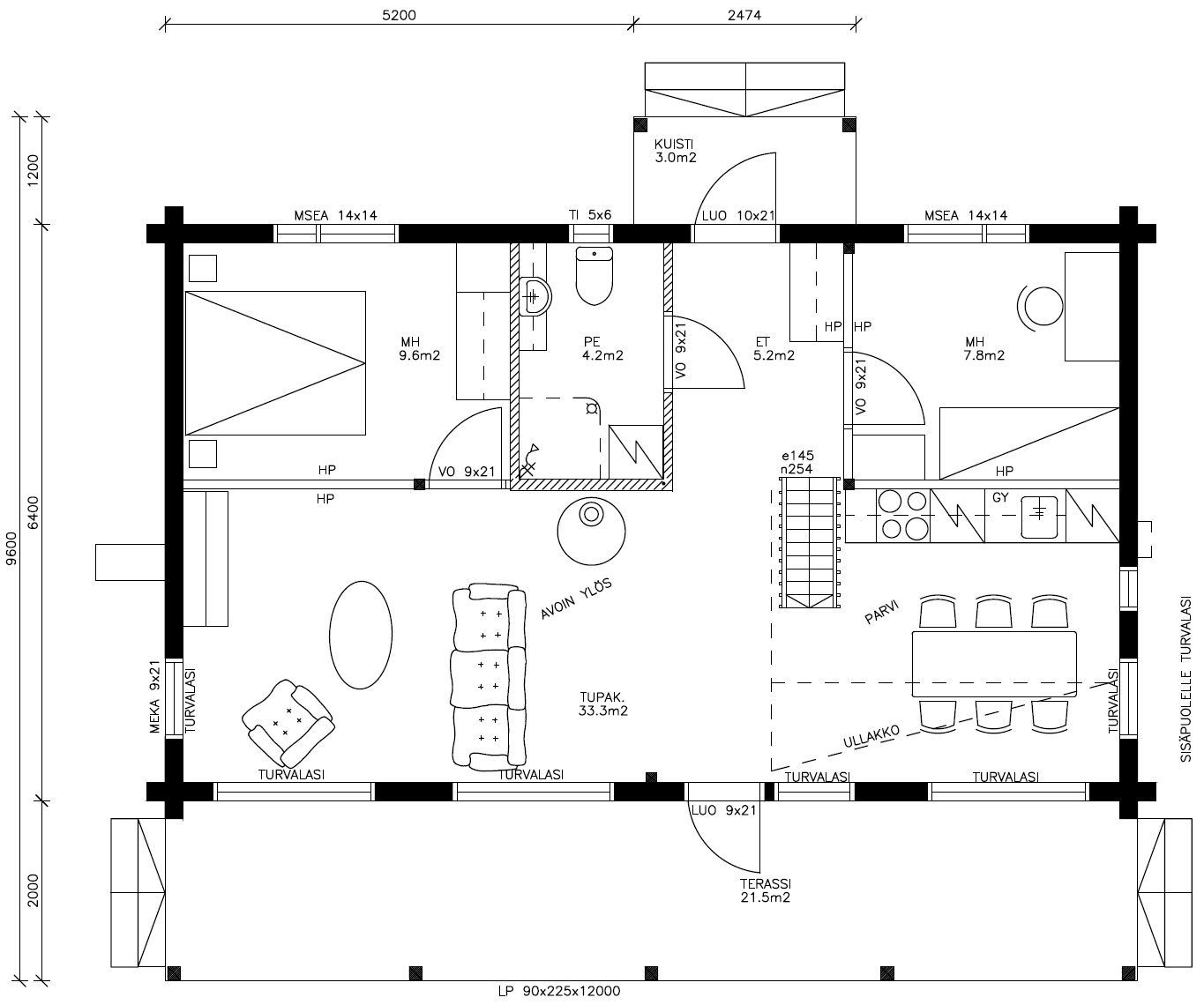
Apartment area: 60 m2 | Floor area: 69 m2
GROUND DRAWING
We help you choose the best villa solution
Finnish Polarlog's expert representative will help you choose and put together the best package for you. Feel free to contact us and ask for more information.
The villa is available in three different delivery options:
1. Polar Prefabricated Houses: We deliver thermally insulated wall elements to the construction site, packaged according to the work stages, including windows and doors. Weatherproof installation is also an option. Read more about wall elements.
2. Polar Log Houses: Log houses are a beautiful, natural and high-quality solution, using either spruce or pine as raw materials.
Read more about log houses.
3. Polar Precut: Precut-framed houses are the choice for fast and efficient construction. Polarlog Precut house frames are delivered to your site in ready-made sections with inkjet identification and components packaged in stages. All joints are pre-machined and notched, making construction smooth and hassle-free. Read more about the Precut method.
Your dream villa awaits – choose the solution that suits you best!
- You can choose a traditional gable roof or a modern flat roof, and you can choose the exterior color according to your taste.
- We also offer customized plans and the ability to modify an existing house model to your wishes. Our expert team is ready to help you every step of the way.
- Feel free to contact us and ask more about the villa, find your new home where everyday life goes smoothly and where you will enjoy living year after year!
See other models too!
Share villa:






















