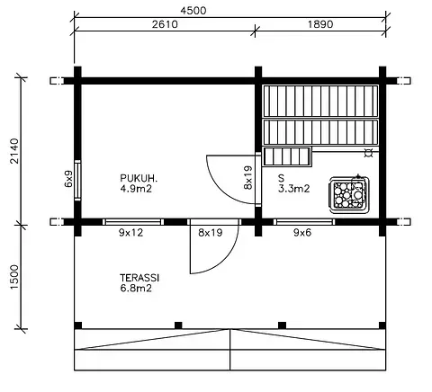
POHJAPIIRROS
Autamme sinua valitsemaan parhaimman saunaratkaisun
Finnish Polarlog:in asiantunteva edustaja auttaa valitsemaan ja kokoamaan parhaimman kokonaisuuden juuri sinulle. Ota rohkeasti yhteyttä ja kysy lisää.
Saunat ja saunatuvat ovat saatavilla 2 eri toimitusvaihtoehdolla:
- Polar-hirsisaunat: Hirsisaunat ovat upea, luonnollinen ja laadukas ratkaisu, jonka raaka-aineeksi voi valita joko kuusta tai mäntyä. Lue lisää hirsisaunasta
- Polar-Precut saunat: Precut-rakenteiset saunat toimitetaan osina työmaalle, valmiiksi merkittyinä ja työvaiheittain pakattuna. Lue lisää Precut-rakenteisista Saunoista
Löydä Täydellinen Sauna tai Saunatupa Finnish Polarlogilta!
Tutustu Finnish Polarlogin saunoihin ja saunatupiin, joissa yhdistyvät perinteinen suomalainen käsityötaito ja moderni muotoilu. Saunamme tarjoavat täydellisen paikan rentoutumiseen ja hyvinvointiin, olitpa sitten perinteisen tai modernin tyylin ystävä.
Muokkaa Sauna Täysin Mieltymyksiesi Mukaan
Valitse saunallesi perinteinen harjakatto tai moderni lapekatto – molemmat tuovat omaleimaista ilmettä ja täyttävät juuri sinun esteettiset tarpeesi. Voit myös valita julkisivun värityksen ja materiaalit makusi mukaan, joten sauna sulautuu täydellisesti ympäristöönsä.
Yksilöllistä Suunnittelua Vaatimustesi Mukaan
Tarjoamme mahdollisuuden yksilölliseen suunnitteluun, joten voit muokata saunamallejamme omien toiveidesi ja tarpeidesi mukaan. Asiantunteva tiimimme on valmis auttamaan sinua jokaisessa vaiheessa, varmistaen että lopputulos on juuri sellainen kuin haluat.
Kysy Lisää ja Toteuta Saunaunelmasi
Ota rohkeasti yhteyttä ja kysy lisää Finnish Polarlogin saunoista ja saunatuvista. Löydä täydellinen sauna, jossa voit nauttia rentouttavista hetkistä ja luoda unohtumattomia muistoja. Anna meidän auttaa sinua löytämään sauna, joka sopii täydellisesti elämäntyyliisi ja mieltymyksiisi!

 
  
  
  
  
  
 

















