Polar-Halli 1
220 m² Huoneistoala
/
235 m² Kerrosala
/
1350 m³ Tilavuus
/
P3 Paloluokka
Polar-Halli 1
220 m² Huoneistoala
/
235 m² Kerrosala
/
1350 m³ Tilavuus
/
P3 Paloluokka
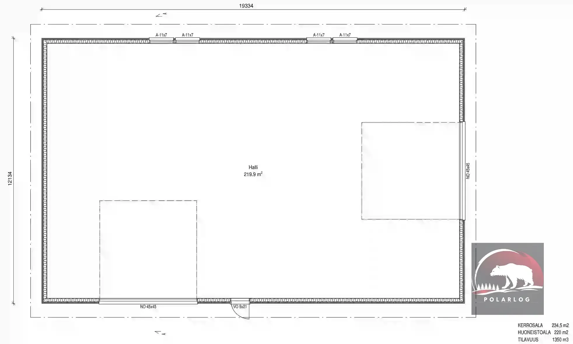
Polar-Halli 1 on vakiomallistomme pienin halli, mutta tarjoaa silti runsaasti tilaa arjen tarpeisiin. Huoneistoala on 220 m², kerrosala 235 m² ja tilavuus 1 350 m³, joten halli soveltuu monipuolisesti esimerkiksi ajoneuvojen, työkoneiden ja muun kaluston säilytykseen. P3-paloluokan rakenne varmistaa turvallisuuden. Mallin mittoja, ovia, ikkunoita ja muita yksityiskohtia voidaan helposti muokata, jotta lopputulos vastaa täsmälleen sinun tarpeitasi. Halli on saatavana joko lämpimänä tai kylmänä, ja tilan voi halutessasi jakaa niin, että osa on lämmitetty ja osa kylmä.
Muokattavissa tarpeidesi mukaa
Kaikkia mallejamme voidaan räätälöidä vapaasti esimerkiksi mittojen, huonekorkeuden, ovien, ikkunoiden, ulkoverhouksen ja kattomateriaalin osalta. Voimme toteuttaa myös täysin yksilöllisiä ratkaisuja omien suunnitelmiesi, kuviesi tai toiveidesi pohjalta. Meiltä saat nopeasti tarjouksen juuri sinun tarpeitasi vastaavasta hallista, piharakennuksesta tai autotallista – kilpailukykyiseen hintaan ja haluamallasi toimitussisällöllä.
Polarlog tarjoaa laadukkaat ja muunneltavat halliratkaisut kaikkiin tarpeisiin. Suunnittelemme ja toteutamme yhdessä kanssasi kestävän ja laadukkaan tilan, joka palvelee sinua vuosiksi eteenpäin. Olipa kyseessä konehalli, varasto tai harrastetila, meiltä saat juuri sinulle sopivan ratkaisun
Ota meihin yhteyttä
Ota Yhteyttä
Kiitos yhteydenotostasi. Otamme sinuun yhteyttä mahdollisimman pian.
Hups, viestin lähettämisessä tapahtui virhe. Yritä uudelleen myöhemmin.
Autamme sinua valitsemaan parhaimman ratkaisun
Finnish Polarlogin asiantunteva edustaja auttaa valitsemaan ja kokoamaan parhaimman kokonaisuuden juuri sinulle. Ota rohkeasti yhteyttä ja kysy lisää.
Elementtitoimitus - valmiiksi koottuna
Nopeuta rakentamista valmiiksi koottujen elementtien avulla. Rakennus nousee pystyyn hetkessä ja säästät aikaa työmaalla.
PRECUT – Rakentamisen joustavuus
PRECUT-toimituksessa saat materiaalit valmiiksi mitattuina ja numeroituina, jolloin rakentaminen on tarkkaa ja sujuvaa alusta loppuun.
Upea ja tyylikäs halli puuelementeistä
Asiakas toivoi selkeää, tyylikästä ja toimivaa tilaratkaisua, joka valmistuisi nopeasti. Lopputuloksena syntyi halli, joka toteutettiin puuelementeistä – juuri asiakkaan tarpeisiin mitoitettuna.
Rakennus nousi nopeasti paikoilleen ja on nyt valmiina käyttöön monipuolisessa arjessa. Yksinkertainen muotokieli ja tummat sävyt istuvat hienosti ympäristöönsä, ja halli tarjoaa kestävät ja käytännölliset puitteet vuosiksi eteenpäin.








