Polar-Merisävel omakotitalo
Huoneluku: 4h, keittiö | Huoneistoala yhteensä: 120m2 | Kerrosala yhteensä: 164m2
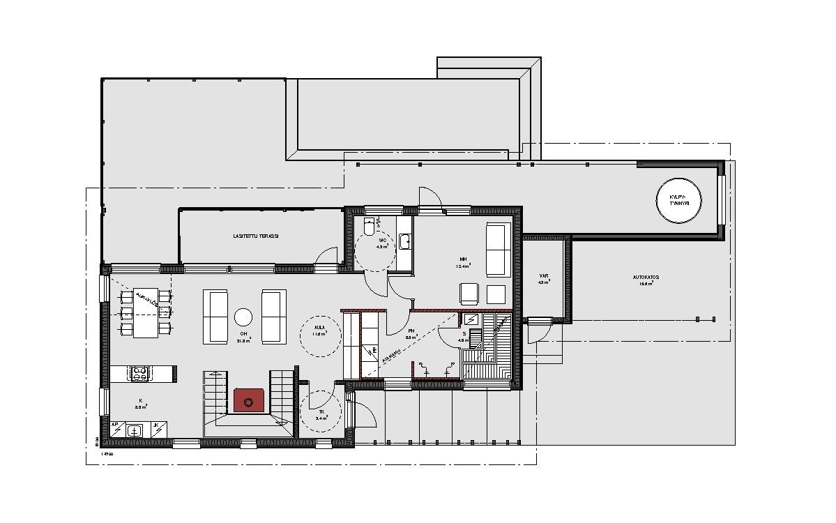
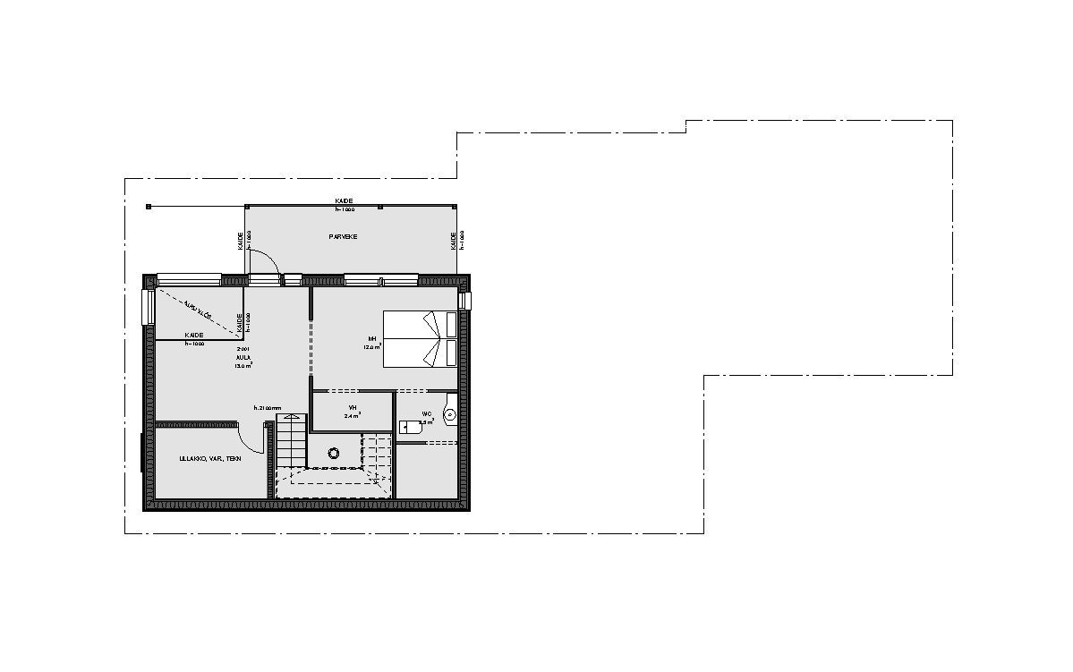
POHJAPIIRROS
Alakerta huoneistoala: 82m2 | Alakerta kerrosala: 93m2
Yläkerta huoneistoala: 89m2 | Yläkerta kerrosala: 99m2
Autamme sinua valitsemaan parhaimman taloratkaisun
Finnish Polarlog:in asiantunteva edustaja auttaa valitsemaan ja kokoamaan parhaimman kokonaisuuden juuri sinulle. Ota rohkeasti yhteyttä ja kysy lisää.
JULKISIVUT
Omakotitalomme ovat saatavilla kolmella eri toimitusvaihtoehdolla:
1.Polar-elementtitalot: Toimitamme työmaalle valmiiksi lämpöeristetyt seinäelementit, jotka on pakattu työvaiheiden mukaan. Elementit sisältävät valmiiksi asennetut ikkunat ja ovet, mikä nopeuttaa rakennusprojektia. Lue lisää seinäelementeistä
2. Polar-hirsitalot: Hirsitalot tarjoavat upean ja luonnonläheisen asumisratkaisun. Voit valita raaka-aineeksi joko laadukkaan kuusen tai männyn, jotka tekevät kodista kestävän ja tunnelmallisen.Lue lisää hirsitaloista
3. Polar-Precut talot: Precut-rakenteiset talot toimitetaan työmaalle osina, valmiiksi merkittyinä ja pakattuina työvaiheiden mukaisesti. Tämä ratkaisu sopii erityisesti niille, jotka haluavat rakentaa talon itse tai paikallisen rakennustiimin avulla.Lue lisää Precut-rakenteisista taloista
Yksilöllinen suunnittelu: Jokainen koti suunnitellaan huolellisesti juuri sinun perheesi tarpeet huomioiden. Tavoitteenamme on luoda koti, joka ei ainoastaan toimi arjen käytännön haasteissa, vaan myös tarjoaa viihtyisän ja toimivan tilan, jossa koko perhe voi nauttia asumisesta pitkälle tulevaisuuteen.
1. Valittavissa oleva kattotyyli: Kattotyylin valinta antaa mahdollisuuden vaikuttaa merkittävästi kotisi ulkonäköön. Voit valita klassisen ja ajattoman harjakaton tai modernin ja minimalistisen lapekaton. Molemmat vaihtoehdot ovat sekä käytännöllisiä että kestäviä, sopien erinomaisesti suomalaisiin sääolosuhteisiin.
2. Julkisivun ja vesikaton värit: Ulkoasun räätälöinti on olennainen osa kodin personointia. Tarjoamme laajan valikoiman värivaihtoehtoja, joiden avulla voit luoda talollesi juuri haluamasi ilmeen. Julkisivun ja vesikaton väritys voidaan valita erikseen, jolloin saat kodillesi persoonallisen ja kauniin ulkoasun, joka kestää aikaa.
3. Muokattavat talomallit: Valmiit talomallimme tarjoavat erinomaisen pohjan unelmiesi kodille, mutta ne eivät rajoita suunnitteluvapautta. Muokkaamme malleja joustavasti toiveidesi mukaan, jotta lopputuloksena on juuri sinun tarpeisiisi ja toiveisiisi sopiva koti. Näin voit olla varma, että kotisi on ainutlaatuinen ja juuri sinulle tehty.
4. Räätälöidyt asennuspalvelut: Asennuspalvelumme on suunniteltu joustavaksi, jotta se vastaa täydellisesti projektisi erityistarpeisiin. Voimme muokata asennuksen sisältöä aina vesikattoon asti tai kattamaan vain tietyt työvaiheet – kaikki riippuen siitä, miten paljon haluat itse osallistua rakentamiseen. Tavoitteenamme on tehdä rakennusprosessista sinulle mahdollisimman helppoa ja sujuvaa.









