Polar-Pallas: Valoa Tulvivat Ikkunat ja Moderni harjakatto
Avara huoneisto, jossa suuret ikkunat ja paljon luonnonvaloa
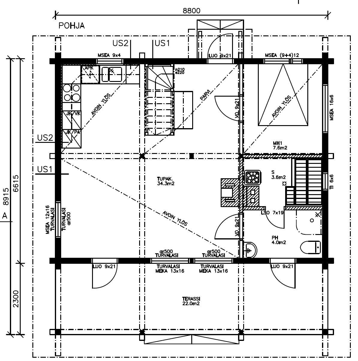
Huoneistoala: 50 m2 | Kerrosala: 58 m2
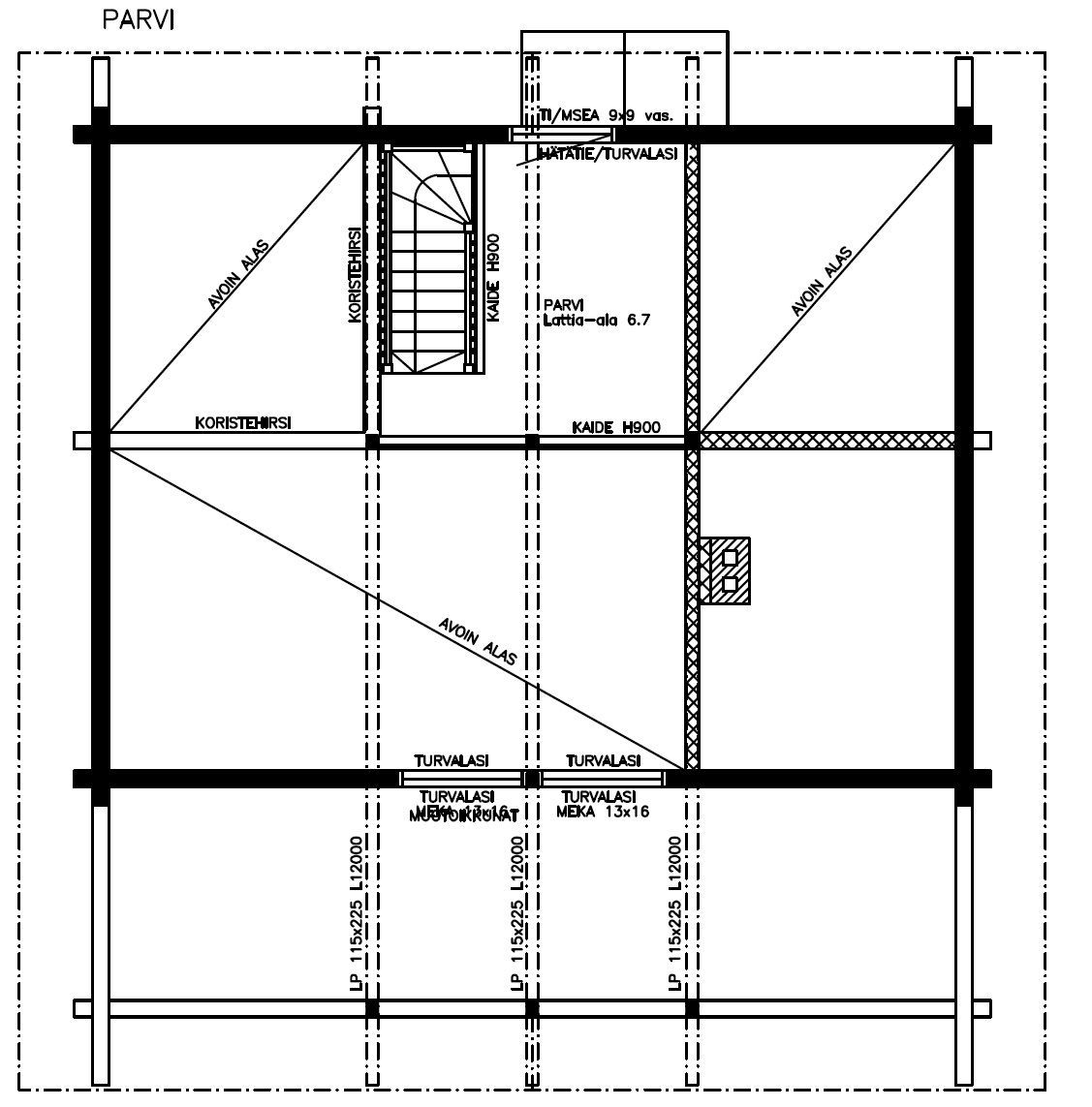
POHJAPIIRROS
Autamme sinua valitsemaan parhaimman huvilaratkaisun
Finnish Polarlog:in asiantunteva edustaja auttaa valitsemaan ja kokoamaan parhaimman kokonaisuuden juuri sinulle. Ota rohkeasti yhteyttä ja kysy lisää.
Huvila on saatavilla kolmessa eri toimitusvaihtoehdossa:
1. Polar Elementtitalot : Toimitamme lämpöeristettyjä seinäelementtejä rakennustyömaalle, pakattuina työvaiheiden mukaan, mukaan lukien ikkunat ja ovet.Valittavana on myös säältä suojaan -asennus. Lue lisää seinäelementeistä.
2. Polar Hirsitalot : Hirsitalot ovat kaunis, luonnollinen ja korkealaatuinen ratkaisu, jossa raaka-aineena käytetään joko kuusta tai mäntyä.
3. Polar Precut : Precut-rakenteiset talot ovat nopean ja tehokkaan rakentamisen valinta. Polarlog Precut -talojen rungot toimitetaan työmaallesi valmiiksi osina, joissa on mustesuihkutunnisteet ja työvaiheittain pakatut komponentit. Kaikki liitokset ovat valmiiksi työstettyjä ja lovettuja, mikä tekee rakentamisesta sujuvaa ja vaivatonta.Lue lisää Precut menetelmästä.
Unelma huvilasi odottaa – valitse sinulle parhaiten sopiva ratkaisu!
- Voit valita perinteisen harjakaton tai modernin tasakaton, ja voit valita ulkovärin maun mukaan.
- Tarjoamme myös räätälöityjä suunnitelmia ja mahdollisuuden muokata olemassa olevaa talomallia toiveidesi mukaan. Asiantunteva tiimimme on valmis auttamaan sinua joka vaiheessa.
- Ota rohkeasti yhteyttä ja kysy lisää huvilasta löydä uusi kotisi, jossa arki sujuu ja jossa nautit asumisesta vuodesta toiseen!
Katso myös muut mallit!
Jaa huvila:
























