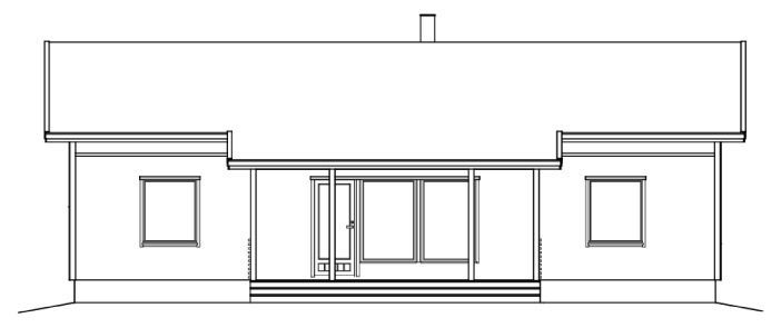
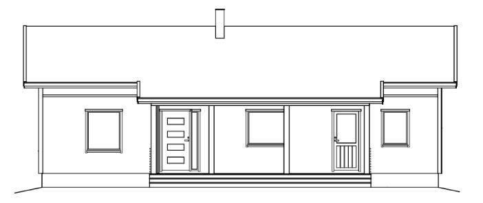
Polar-Tuike Eneboliger
Et lyst allromskjøkken som går tvers gjennom huset.
Huoneluku: 4h, tupakeittiö | Huoneistoala: 101m2 | Kerrosala: 112m2
POHJAPIIRROS
Ai hjelper deg med å velge den beste boligløsningen.
Den kompetente representanten fra Polarlog hjelper deg med å velge og sette sammen den beste helheten for deg. Ta gjerne kontakt for mer informasjon.
Vår enebolig er tilgjengelig med tre ulike leveringsalternativer:
1. Polar-elementhus: Vi leverer ferdig isolerte veggelementer til byggeplassen, pakket i henhold til arbeidsprosessene. Elementene inkluderer ferdig monterte vinduer og dører, noe som fremskynder byggeprosjektet. Les mer om veggelementene.
2. Polar-tømmerhus: Tømmerhus gir en fantastisk og naturnær boligløsning. Du kan velge råmateriale fra enten kvalitetsgran eller furu, som gjør hjemmet ditt bærekraftig og koselig. Les mer om tømmerhusene.
3. Polar-Precut hus: Precut-strukturerte hus leveres til byggeplassen i deler, ferdig merket og pakket i henhold til arbeidsprosessene. Denne løsningen passer spesielt for dem som ønsker å bygge huset selv eller med hjelp fra et lokalt byggteam. Les mer om Precut-strukturerte hus.
Skreddersydd design: Hvert hjem blir nøye designet med tanke på din families behov. Vårt mål er å skape et hjem som ikke bare håndterer hverdagens praktiske utfordringer, men som også gir et komfortabelt og funksjonelt rom hvor hele familien kan nyte livet i mange år fremover.
- Valg av takstil: Valget av takstil gir deg muligheten til å påvirke utseendet på hjemmet ditt betydelig. Du kan velge mellom et klassisk og tidløst saltak eller et moderne og minimalistisk skråtak. Begge alternativene er både praktiske og holdbare, og passer perfekt til de norske værforholdene.
2. Farger på fasade og tak: Tilpasning av utseendet er en essensiell del av personliggjøringen av hjemmet. Vi tilbyr et bredt spekter av fargealternativer som lar deg skape det utseendet du ønsker for huset ditt. Fargen på fasaden og taket kan velges separat, noe som gir deg et personlig og vakkert utseende som varer.
3. Tilpassbare husmodeller: Våre ferdige husmodeller gir et utmerket grunnlag for drømmehjemmet ditt, men de begrenser ikke designfriheten. Vi tilpasser modellene fleksibelt etter dine ønsker, slik at resultatet blir et hjem som passer akkurat til dine behov og ønsker. Dermed kan du være trygg på at hjemmet ditt er unikt og laget spesielt for deg.
4. Skreddersydde installasjonstjenester: Våre installasjonstjenester er designet for å være fleksible, slik at de perfekt møter de spesifikke behovene i prosjektet ditt. Vi kan tilpasse innholdet i installasjonen fra taket og ned, eller dekke bare bestemte arbeidsfaser – alt avhengig av hvor mye du ønsker å delta i byggingen. Vårt mål er å gjøre byggeprosessen så enkel og smidig som mulig for deg.








