Polar-Kevo Hytte - Gamle Tids Atmosfære og Moderne Luksus
Koselig hytte med en praktisk planløsning
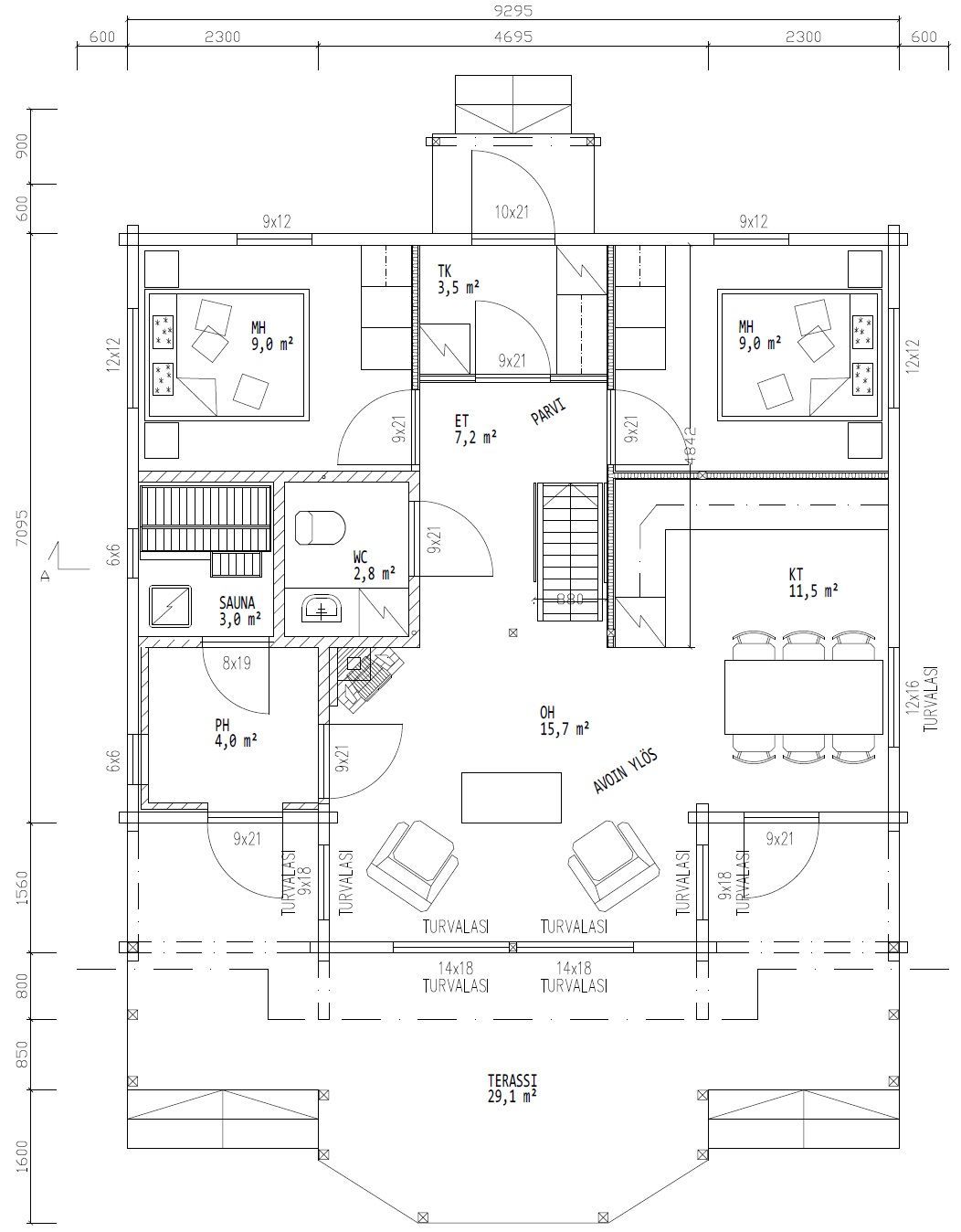
Huoneistoala: 78 m2 | Kerrosala: 83 m2
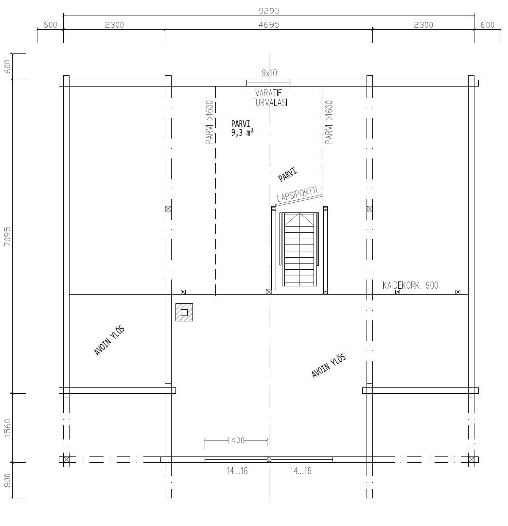
POHJAPIIRROS
Ai hjelper deg med å velge den beste boligløsningen.
Den kompetente representanten fra Polarlog hjelper deg med å velge og sette sammen den beste helheten for deg. Ta gjerne kontakt for mer informasjon.
Vår tømmerhytte er tilgjengelig med tre ulike leveringsalternativer:
1. Polar-elementhytte: Vi leverer ferdig isolerte veggelementer til byggeplassen, pakket i henhold til arbeidsprosessene. Elementene inkluderer ferdig monterte vinduer og dører, noe som fremskynder byggeprosjektet. Les mer om veggelementene.
2. Polar-tømmerhytte: Tømmerhytter gir en fantastisk og naturnær boligløsning. Du kan velge råmateriale fra enten kvalitetsgran eller furu, som gjør hytten din bærekraftig og koselig. Les mer om tømmerhusene.
3. Polar-Precut hytte: Precut-strukturerte hytter leveres til byggeplassen i deler, ferdig merket og pakket i henhold til arbeidsprosessene. Denne løsningen passer spesielt for dem som ønsker å bygge hytten selv eller med hjelp fra et lokalt byggteam.Les mer om Precut-strukturerte hus.
Din drømmehytte venter – velg løsningen som passer best for deg!
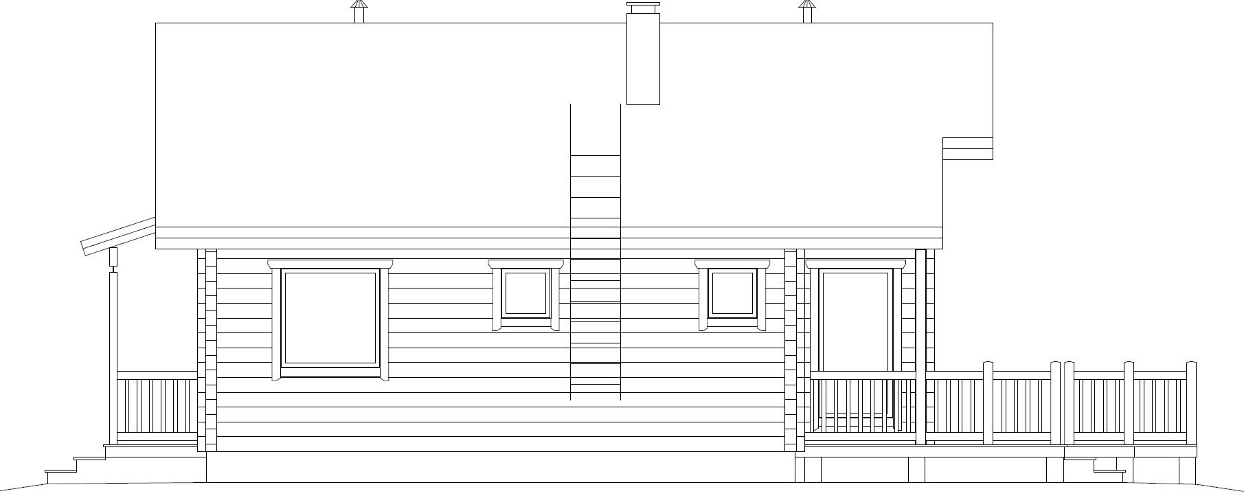
- Du kan velge mellom et tradisjonelt saltak eller et moderne flatt tak, og du kan velge utvendig farge etter din smak.
- Vi tilbyr også skreddersydde løsninger og muligheten til å tilpasse eksisterende hyttemodeller etter dine ønsker. Vårt erfarne team er klare til å hjelpe deg i alle faser av prosessen.
- Ta gjerne kontakt og spør mer om hyttene – finn ditt nye hjem der hverdagen fungerer, og hvor du kan nyte livet år etter år!
- Våre modeller kan tilpasses akkurat etter dine ønsker. Hvis du har en egen modell eller et eget design i tankene, er du velkommen til å ta kontakt. Sammen kan vi utvikle prosjektet og gjøre drømmen din til virkelighet.
Jaa huvila:









