Polar-Light freistehendes Haus
Ein gut durchdachtes Fundament macht den Alltag funktional und schafft die Grundlage für ein angenehmes Miteinander.
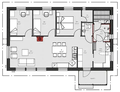
Anzahl der Zimmer: 4 Schlafzimmer, Küche | Wohnfläche: 90 m² | Nutzfläche: 100 m²
GRUNDZEICHNUNG
Wir helfen Ihnen, die beste Wohnlösung zu finden.
Der finnische Polarlog-Experte hilft Ihnen gerne bei der Auswahl und Zusammenstellung des optimalen Pakets. Kontaktieren Sie uns einfach für weitere Informationen.
Unsere freistehenden Häuser sind mit drei verschiedenen Lieferoptionen erhältlich:
- Polar-Fertighäuser: Wir liefern vorisolierte Wandelemente direkt zur Baustelle, verpackt nach Bauabschnitten. Die Elemente beinhalten vorinstallierte Fenster und Türen, was den Bauprozess beschleunigt. Erfahren Sie mehr über Wandelemente.
- Blockhäuser: Blockhäuser bieten eine wunderbare und natürliche Wohnlösung. Sie können zwischen hochwertiger Fichte oder Kiefer als Rohmaterial wählen, was das Haus langlebig und stimmungsvoll macht. Lesen Sie mehr über Blockhäuser.
- Polar-Fertighäuser: Fertighäuser werden in einzelnen Elementen zur Baustelle geliefert, vorbeschriftet und entsprechend den Bauphasen verpackt. Diese Lösung eignet sich besonders für alle, die ihr Haus selbst oder mit Unterstützung eines lokalen Bauunternehmens errichten möchten. Erfahren Sie mehr über Fertighäuser.
Individuelles Design: Jedes Haus wird sorgfältig und unter Berücksichtigung der Bedürfnisse Ihrer Familie geplant. Unser Ziel ist es, ein Zuhause zu schaffen, das nicht nur den praktischen Anforderungen des Alltags gerecht wird, sondern auch einen komfortablen und funktionalen Wohnraum bietet, in dem sich die ganze Familie auch in Zukunft wohlfühlen kann.
- Wählen Sie Ihre Dachform: Mit der Wahl der Dachform können Sie das Erscheinungsbild Ihres Hauses maßgeblich beeinflussen. Sie haben die Wahl zwischen einem klassischen und zeitlosen Satteldach und einem modernen und minimalistischen Flachdach. Beide Varianten sind praktisch und langlebig und perfekt an die finnischen Wetterbedingungen angepasst.
- Fassaden- und Dachfarben: Die individuelle Gestaltung ist ein wesentlicher Bestandteil der persönlichen Wohnträume. Wir bieten Ihnen eine große Auswahl an Farben, mit denen Sie den gewünschten Look für Ihr Zuhause kreieren können. Fassaden- und Dachfarben lassen sich separat auswählen und verleihen Ihrem Haus so ein individuelles und ansprechendes Aussehen, das lange anhält.
- Individuell anpassbare Hausmodelle: Unsere vorgefertigten Hausmodelle bieten eine hervorragende Basis für Ihr Traumhaus, schränken Ihre Gestaltungsfreiheit aber nicht ein. Wir passen die Modelle flexibel an Ihre Wünsche an, sodass am Ende ein Haus entsteht, das genau Ihren Bedürfnissen und Vorstellungen entspricht. So können Sie sicher sein, dass Ihr Haus einzigartig und exklusiv für Sie gefertigt wird.
- Maßgeschneiderte Installationsleistungen: Unsere Installationsleistungen sind flexibel gestaltet und werden optimal an die spezifischen Anforderungen Ihres Projekts angepasst. Wir können den Installationsumfang bis hin zur Abdichtung individuell gestalten oder uns auf bestimmte Arbeitsschritte beschränken – ganz nach Ihren Wünschen und Ihrem gewünschten Grad an Beteiligung am Bauprozess. Unser Ziel ist es, den Bauprozess für Sie so einfach und reibungslos wie möglich zu gestalten.








