Polar-Koli Villa: Die perfekte Flucht vor dem Alltagslärm
Eine große Terrasse bringt eine atemberaubende Landschaft in Ihr Zuhause und Ihren Wohnraum.
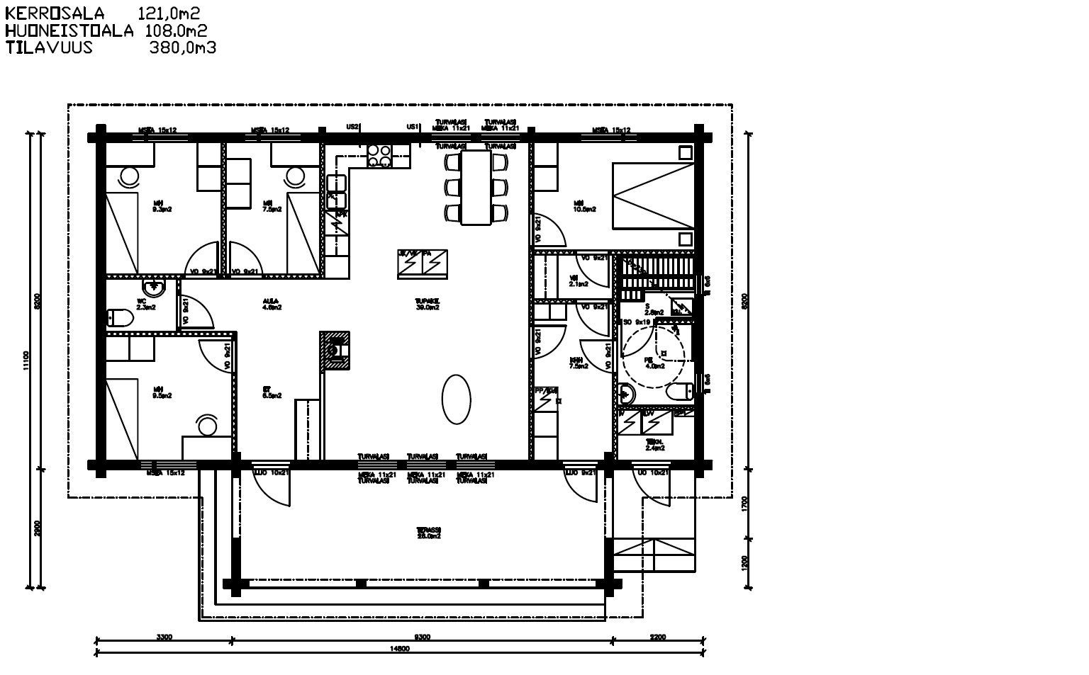
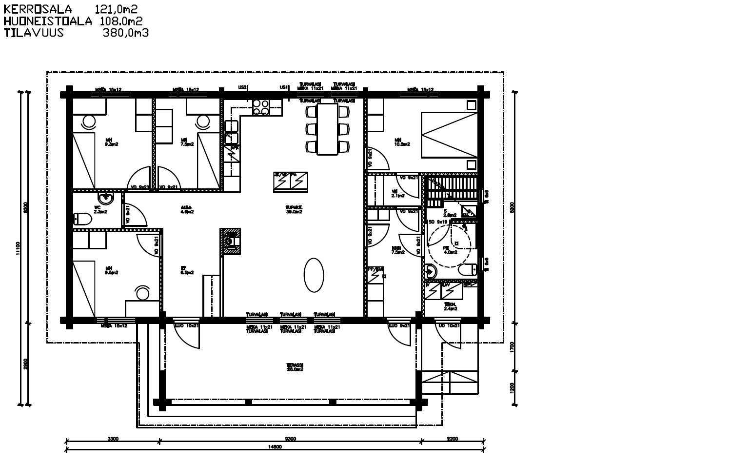
Wohnungsfläche: 108m2 | Grundfläche: 121m2
GRUNDZEICHNUNG
Wir helfen Ihnen bei der Auswahl der besten Villenlösung
Der fachkundige Vertreter von Finnish Polarlog hilft Ihnen bei der Auswahl und Zusammenstellung des für Sie besten Pakets. Nehmen Sie gerne Kontakt mit uns auf und fragen Sie uns weiter.
Die Villa ist in drei verschiedenen Lieferoptionen verfügbar:
1. Polar Fertighäuser: Wir liefern wärmegedämmte Wandelemente, nach Leistungsphasen verpackt, inklusive Fenster und Türen direkt auf die Baustelle. Auch eine wetterfeste Montage ist möglich. Lesen Sie mehr über Wandelemente.
2. Polar-Blockhäuser: Blockhäuser sind eine schöne, natürliche und hochwertige Lösung, bei der entweder Fichte oder Kiefer als Rohstoffe verwendet werden.
Lesen Sie mehr über Blockhäuser.
3. Polar Precut: Vorgeschnittene Strukturhäuser sind die Wahl für schnelles und effizientes Bauen. Polarlog Precut-Hausrahmen werden in vorgefertigten Abschnitten mit Tintenstrahletiketten und nach Arbeitsschritten verpackten Komponenten an Ihre Baustelle geliefert. Alle Verbindungen sind vorgefertigt und eingekerbt, sodass die Konstruktion reibungslos und mühelos verläuft. Lesen Sie mehr über die Precut-Methode.
Ihre Traumvilla erwartet Sie – wählen Sie die Lösung, die am besten zu Ihnen passt!
- Sie haben die Wahl zwischen einem traditionellen Satteldach oder einem modernen Flachdach und können die Außenfarbe ganz nach Ihrem Geschmack wählen.
- Darüber hinaus bieten wir Ihnen individuelle Planungen und die Möglichkeit, ein bestehendes Hausmodell nach Ihren Wünschen zu verändern. Unser Expertenteam steht Ihnen bei jedem Schritt zur Seite.
- Nehmen Sie gerne Kontakt mit uns auf und fragen Sie uns nach weiteren Informationen zur Villa. Finden Sie Ihr neues Zuhause, in dem der Alltag reibungslos verläuft und Sie Jahr für Jahr Freude daran haben werden!
Sehen Sie sich auch andere Modelle an!
Villa teilen:






















