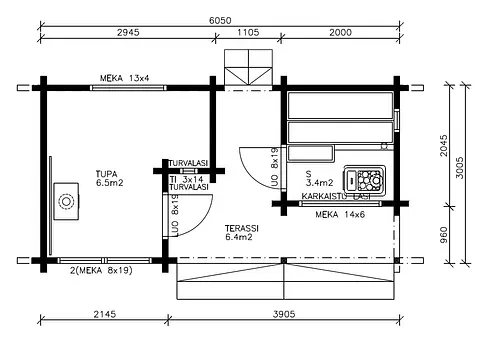
MARKRITNING
Vi hjälper dig att välja den bästa bastulösningen
Finska Polarlogs expertrepresentant hjälper dig att välja och montera det bästa paketet just för dig. Kontakta oss gärna och fråga mer.
Bastu och bastustugor finns med 2 olika leveransalternativ:
- Polar timmerbastur: Timmerbastur är en underbar, naturlig och högkvalitativ lösning, vars råvara kan väljas från antingen gran eller furu. Läs mer om timmerbastur
- Polar-Precut bastur: Precut-strukturerade bastur levereras till byggarbetsplatsen i delar, förmärkta och förpackade enligt arbetsstadierna. Läs mer om Precut-strukturerade bastur
Hitta den perfekta bastun eller bastustugan på finska Polarlog!
Upptäck finska Polarlogs bastur och bastustugor, som kombinerar traditionellt finskt hantverk och modern design. Våra bastur erbjuder den perfekta platsen för avkoppling och välbefinnande, oavsett om du är ett fan av traditionella eller moderna stilar.
Anpassa din bastu efter din egen smak
Välj ett traditionellt sadeltak eller ett modernt platt tak för din bastu – både ger ett distinkt utseende och uppfyller dina estetiska behov. Du kan också välja färg och material på fasaden för att passa din smak, så att bastun smälter in perfekt i sin omgivning.
Individuell design enligt dina krav
Vi erbjuder möjlighet till individuell design, så att du kan skräddarsy våra bastumodeller efter dina egna önskemål och behov. Vårt expertteam är redo att hjälpa dig varje steg på vägen, för att säkerställa att slutresultatet blir precis vad du vill ha.
Fråga mer och förverkliga din bastudröm
Kontakta oss gärna och fråga mer om finska Polarlogs bastur och bastustugor. Hitta den perfekta bastun där du kan njuta av avkopplande stunder och skapa oförglömliga minnen. Låt oss hjälpa dig att hitta den bastu som passar din livsstil och dina preferenser perfekt!

















