Polar-Rauha saunatupa
Isot Ikkunat tuovat runsaasti valoa Tupaan, Mahdollista saada myös peilikuvana
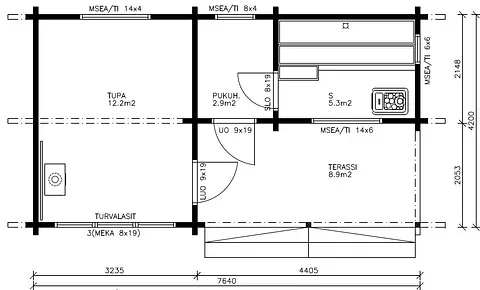
Huoneistoala: 20.5 m2 | Kerrosala: 23 m2
POHJAPIIRROS
Vi hjälper dig att designa den bästa bastulösningen
En kunnig representant från Finnish Polarlog hjälper dig att välja och sammanställa den bästa lösningen just för dig. Tveka inte att kontakta oss och fråga mer. Om du har ritningar eller en plan kan du skicka dem direkt till oss via e-post.
Bastur och bastustugor finns tillgängliga med två olika leveransalternativ:
- Timmerbastur: Timmerbastur är en fantastisk, naturlig och högkvalitativ lösning där du kan välja mellan gran eller furu som råmaterial. Läs mer om timmerbastur.
- Precut bastur: Precut-bastur levereras i delar direkt till byggplatsen, färdigmärkta och förpackade i arbetssteg. Läs mer om Precut-bastur.a
Hitta den perfekta bastun eller bastustugan hos Finnish Polarlog!
Upptäck Finnish Polarlogs bastur och bastustugor, där traditionellt finländskt hantverk möter modern design. Våra bastur erbjuder den perfekta platsen för avkoppling och välmående – oavsett om du föredrar en klassisk eller modern stil.
Anpassa din bastu helt efter dina önskemål
Välj mellan ett traditionellt sadeltak eller ett modernt pulpettak – båda ger en unik karaktär och passar dina estetiska preferenser. Du kan även anpassa fasadens färg och material efter din smak, så att bastun smälter in perfekt i sin omgivning.
Individuell design efter dina behov
Vi erbjuder möjligheten att anpassa våra bastumodeller efter dina egna önskemål och krav. Vårt erfarna team hjälper dig genom hela processen för att säkerställa att slutresultatet blir precis som du vill ha det.
Fråga oss och förverkliga din bastudröm
Tveka inte att kontakta oss för mer information om Finnish Polarlogs bastur och bastustugor. Hitta den perfekta bastun där du kan njuta av avkopplande stunder och skapa oförglömliga minnen. Låt oss hjälpa dig att hitta en bastu som passar din livsstil och dina preferenser perfekt!

















